35315 Homberg
26. Jan 2026
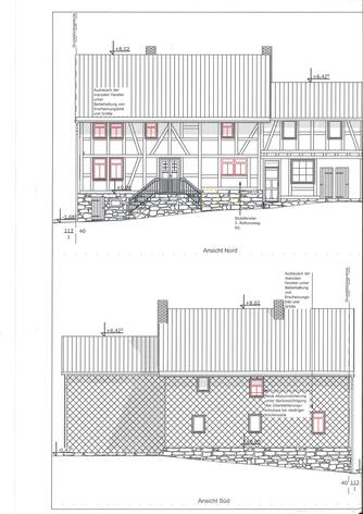
Zweigeschossiges Fachwerkhaus
Schmaler Fachwerkbau, mit dem Haupthaus verbundenes Hinterhaus. Früher wurde im Erdgeschoss eine Gaststätte betrieben, im Obergeschoss gewohnt. Das Gebäude liegt geschützt im alten Ortskern mit kleinem Gärtchen und Hof. Das Grundstück hat 265 qm. Das Baujahr wird auf 1680 geschätzt. Das Gebäude unterliegt Ensembleschutz.
Das Gebäude war bis Anfang 2025 dauerhaft bewohnt und ist inzwischen entkernt. Vor einem Jahr wurde mit der Sanierung begonnen und ein Umbau in ein zwei-Parteien Wohnhaus (1 x 60 qm und 1 x 75 qm) geplant. Ein genehmigter Bauantrag liegt vor. Aus gesundheitlichen Gründen wird das Objekt abgegeben zu einem Kaufpreis von 25.000 €.
Die Kommune Homberg/Ohm befindet sich zurzeit in einem Dorfentwicklungsprojekt, so dass eine Sanierungs- und Umbaumaßnahme mit bis zu 45.000 € bezuschusst werden kann. Glasfaseranschluss vorhanden.
Haarhausen befindet sich im Ohmtal in der Nähe der Universitätsstadt Marburg (20 km).
Kontaktdaten:
Josef Michael Ruhl
36358 Herbstein
Telefon: 01621944446
Objektstandort:
Zum Hofacker 10
35315 Homberg
Deutschland



